Toggle navigation
Hub Bongers
Design Policy Product
Home
Projects
Infrastructure
Design
Dance
Architecture
Gallery 2000
Economic Reflections
Society Reflections
Cultural Industry Places
Homework
Light
Might
Sight
Products
Light
Might
Sight
Publish
Please
Place
29 mei 2021
HuuB
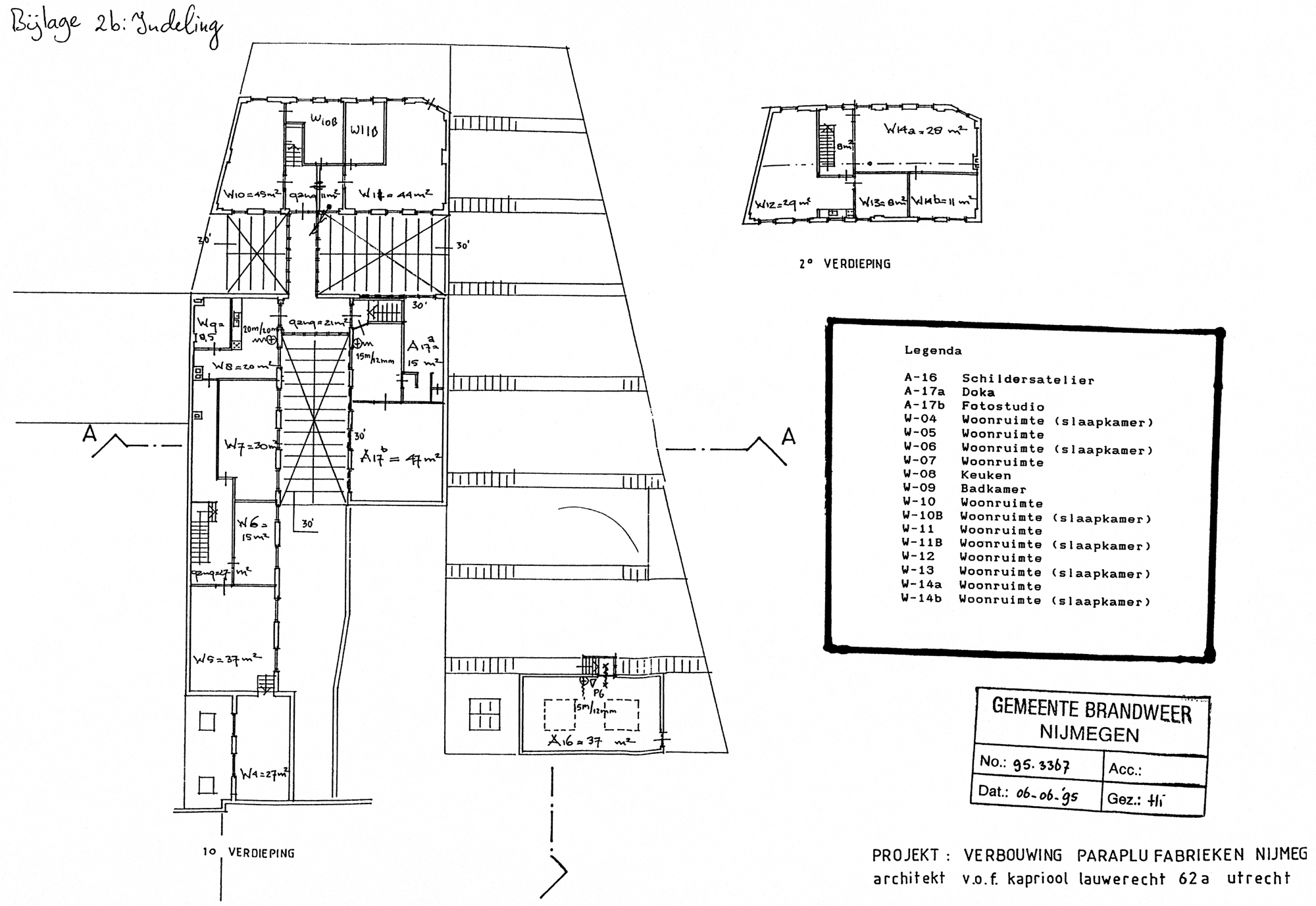
Parapluie fabrieken